Timeline 1996
Home Up

 I never thought that this would take longer than the whole year in 1996.

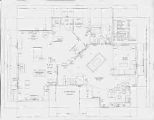
May, 1996 Sealing Walls, Creating plans
June, 1996 The studding around the 1700 square foot basement went pretty quickly with a nail gun.  Roughly 300 studs went into the walls, with 4 nails shot into each one.  You can see the masonry coating on the foundation in the background in this picture.
July, 1996 Rough Electrical work. Plumbing for all of the baseboard radiators
August 1996 Insulation
September 1996 .Drywall around perimeter (Except bathroom),  bathroom ductwork
October 1996 .  

Rough supply plumbing work for the bathroom (five head shower) and bar area.

 
November 2, 1996 "The Rock".  
November 1996 - January 1997  
Concrete work for bathroom and bar drains and pump basins.

 

Atlantis website copyright Jim Rutherford 2000-2016